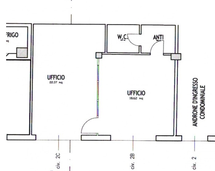
Proponiamo in vendita una unità immobiliare ad uso UFFICIO posta al piano terra di un edificio residenziale e commerciale in Via N. Paganini 2a e 2b. L’immobile data la vetustà necessita di manutenzioni ordinare. L’impianto elettrico è sottotraccia ma non a norma, l’impianto di riscaldamento non è più presente, di interessante c’è il prezzo (ancora un pò trattabile) e la posizione. Essendo ancora in corso la regolarizzazione edilizia è possibile eseguire varianti tecniche interne a spese del venditore, non il costo dell’opera naturalmente. Per maggiori informazioni o per visionare l’ufficio contattare Agenzia Immobiliare DOMUS, Piazzale Bernardino Ramazzini n. 4a, Carpi (MO) – tel. 059/641632 – cell. 339/4732234.
Efficienza Energetica
- Classe EnergeticaND
- Prestazione Energetica GlobaleN
La Struttura Dispone Di
- Condizioni: nuovo
- Giardino 0
- Piano: Alto
- Riscaldamento Assente

